Фасадная система Grosstek GT-2.2 под Фасадный керамогранит

  • Описание системы
  • Документация к системе
  • Фотографии + чертежи + узлы
  • Комплектующие
Фасадная система Grosstek GT-2.2» часто применяется для облицовки жилых, коммерческих, промышленных, торгово-развлекательных и спортивных сооружений.

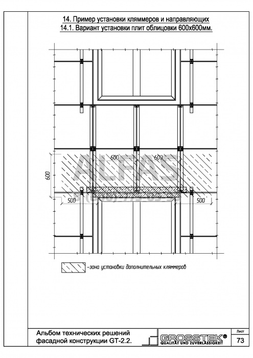
Целью фасадной системы является объединение всех элементов фасада в единое целое.Система состоит из несущих кронштейнов, монтируемых в стену при помощи дюбелей непосредственно к несущей конструкции и профилей, устанавливаемых на кронштейны, к которым с помощью кляммеров, салазок или других крепежных элементов прикрепляется облицовочный материал. Фасадная система равномерно распределяет нагрузку по всей плоскости, поэтому конструкция не имеет ограничений по высоте.

Все части фасадной системы Grosstek GT-2.2 изготавливают из алюминиевого сплава, что делает конструкцию легкой и прочной. Вследствие легкости конструкции, нагрузка на несущую стену ощутимо меньше, чем у систем из других материалов, притом, что сама система способна выдерживать большой вес облицовочного материала.

Алюминиевая фасадная система имеет большое преимущество перед системами из оцинкованной стали, так как алюминий слабо подвержен коррозии. Срок службы такой системы варьируется от 40 до 50 лет.

3bfca5fdd6ecea3beba43ba8f8060a86
3bfca5fdd6ecea3beba43ba8f8060a86
62f9ccc67861aa60098a3cd435a1e947
62f9ccc67861aa60098a3cd435a1e947
abea146ca7104a928ddbf261c0d3f66c
abea146ca7104a928ddbf261c0d3f66c
b59adaf39e66fa9dddc52657b98abeac
b59adaf39e66fa9dddc52657b98abeac
85cc6cfd55772b56958b77cde004888c
85cc6cfd55772b56958b77cde004888c
3e30224b6a6e4d434b387b8967a91699
3e30224b6a6e4d434b387b8967a91699
196e48a10e19d4100eff9da811fa0e60
196e48a10e19d4100eff9da811fa0e60
4fa09ac05e85ecceb3f014655b3304e3
4fa09ac05e85ecceb3f014655b3304e3
Для вас предусмотрена скидка от базовых цен!
Отправить заявку

Другие фасадные системы под
Фасадный керамогранит

Заказать расчёт сметы. БЕСПЛАТНО!